Villa singola in vendita

Noceto, Via Lucio Dalla - Rampa
€ 700.000
4 locali 4 locali
190 Mq 190 Mq
2 bagni 2 bagni

Villa singola in vendita

Noceto, Via Lucio Dalla - Rampa

Descrizione annuncio

NOCETO:

RAMPA:

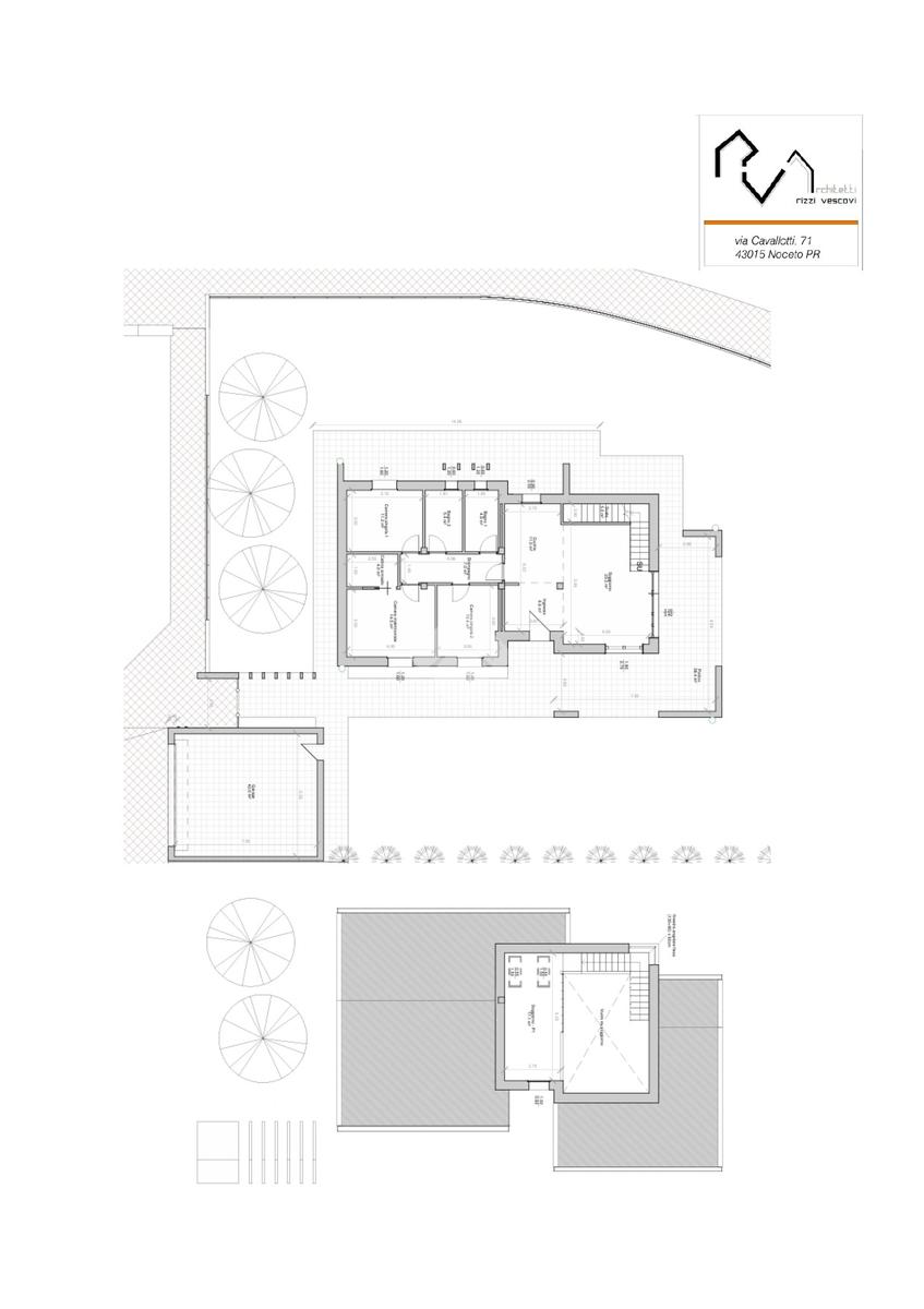
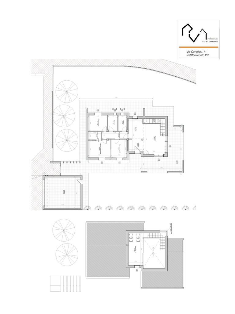
NUOVE MONOFAMILIARI IN CLASSE A4 A NOCETO-ZONA RAMPA

Sta per nascere un nuovo esclusivo progetto residenziale nella tranquilla e ben collegata zona della Rampa di Noceto: quattro eleganti monofamiliari in classe energetica A4, perfette per chi sogna una casa moderna, efficiente e completamente indipendente.

Lotti a partire da 900 a 1432 mq

Ogni villa sorge su un ampio lotto privato, con metrature generose che garantiscono privacy, verde e possibilità di vivere gli spazi esterni in piena libertà.

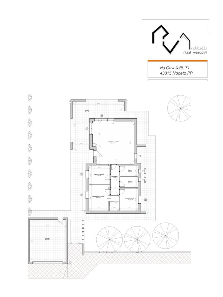
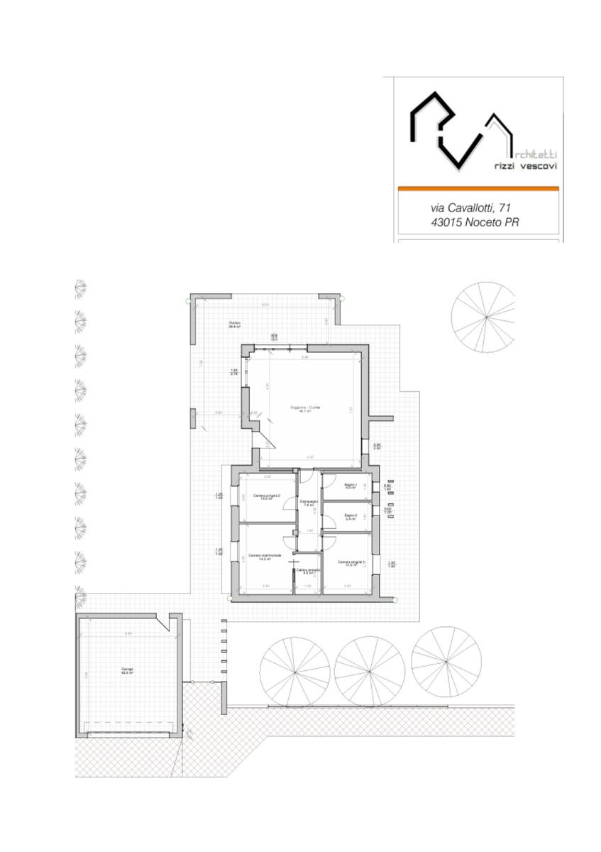
Soluzioni su un unico livello, con un tocco in più

Le abitazioni, tra i 180 ei 190 mq, sono sviluppate tutte su un piano unico per il massimo comfort, con l'opzione di realizzare un suggestivo soppalco aperto sulla zona giorno: un ambiente arioso e dinamico, perfetto per uno studio, un'area relax o una libreria a vista. Un modo unico per personalizzare la casa secondo i propri gusti e la propria creatività.

Garage doppio e grandi portici

Completa ogni unità una spaziosa autorimessa di 40 mq, ideale per due auto, e portici coperti fino a 40 mq, ideali per pranzi all'aperto, momenti di relax e serate in compagnia.

Massima efficienza, comfort assoluto

Le ville saranno realizzate con le più moderne tecnologie costruttive, garantendo il massimo isolamento termoacustico, risparmio energetico e impianti di ultima generazione.

La tua casa a Noceto ti aspetta

In un contesto riservato ma vicino a tutti i servizi, queste soluzioni rappresentano un equilibrio perfetto tra tranquillità, comodità e qualità della vita.

Per maggiori informazioni:

Martina: 333/8564024

Mostra tutto

Nelle vicinanze

Ricariche auto elettriche Ricariche auto elettriche
EnelX Alberto Sordi
1,4 Km
EnelX Piazzale dello Sport
2,0 Km
EnelX Boni e Gavazzi
2,1 Km
Scuole Scuole
Scuola secondaria di primo grado "Biagio Pelacani"
1,8 Km
Scuola primaria "Renzo Pezzani"
1,9 Km
Scuole
2,2 Km
Farmacia Farmacia
Farmacia
2,2 Km
Supermercati Supermercati
Conad
2,3 Km
Supermercati
2,6 Km
Negozi Negozi
Negozi
2,2 Km
Bar Bar
Bar da Marcello
1,4 Km
Bar
1,7 Km
Bar Legends
1,7 Km
Ristoranti Ristoranti
La Buca dei Diavoli
1,4 Km
IL Noce
1,5 Km
Ristoranti
1,6 Km
Bertinelli
1,7 Km
Mostra tutto

Caratteristiche

Rif.:
61098158
Piano:
2 di 2 (Piano basso)
Box:
2
Posti auto:
2
Terrazzi:
1
Camere da letto:
3
Mostra tutto
Prezzo Prezzo
€ 700.000
Rata mutuo Rata mutuo
€ 3.227 / mese
Spese annue Spese annue
€ 0
Proponi il tuo prezzoProponi il tuo prezzo

Classe Energetica

A4
A4
A4
A4
A4
A4
A4
A4
A4
EP invernale del fabbricato:
EP estiva del fabbricato:
Anno di costruzione:
2026
Riscaldamento:
Autonomo
Tipo impianto:
A pavimento
Tipo alimentazione:
Pannelli

Ti interessa visionare l'immobile?

Fissa un appuntamento  Fissa un appuntamento

Richiedi informazioni

* Questi campi sono obbligatori

Calcola il tuo mutuo

Semplice e senza impegno
Anticipo

( % )
Mutuo

( % )

pochi semplici passi

inserisci i tuoi dati
Questionario completato
Grazie per aver richiesto un appuntamento senza impegno con un nostro Consulente del Credito e Assicurativo.

Hai inserito correttamente tutti i dati necessari e a breve riceverai una e-mail con un link da convalidare per inviare i tuoi dati.
Affiliato
Ares Immobiliare Srl
Via Matteotti, 27 43015 Noceto (PR)

Il nostro staff


  • Martina Gallo
    Affiliata

  • Samuel Cresci
    Responsabile

  • Alexandra Mocanu
    Coordinatrice
Via Matteotti, 27 43015 Noceto (PR)
Zona: Noceto - Fontevivo - Fontanellato
Mostra su mappa
Orari: Dal lunedì al venerdì: 9:00-13:00 / 15:00-20.00 Sabato: 9.00-17.00
Affiliato
Ares Immobiliare Srl
Via Matteotti, 27 43015 Noceto (PR)

2025 Tecnocasa Franchising S.p.A. - P. IVA 08365160152 - Via Monte Bianco 60/A 20089 Rozzano (MI). Ogni agenzia ha un proprio titolare ed è autonoma. Privacy policy | Policy utilizzo | Cookie policy