Bilocale in vendita

Noceto, Via Giacomo Matteotti
€ 110.000
2 locali 2 locali
54 Mq 54 Mq
1 bagno 1 bagno

Bilocale in vendita

Noceto, Via Giacomo Matteotti

Descrizione annuncio

NOCETO:

CERCHI UN BILOCALE LUMINOSO, MODERNO E PRONTO DA VIVERE IN PIENO CENTRO A NOCETO?

QUESTA E’ LA SOLUZIONE CHE FA PER TE!

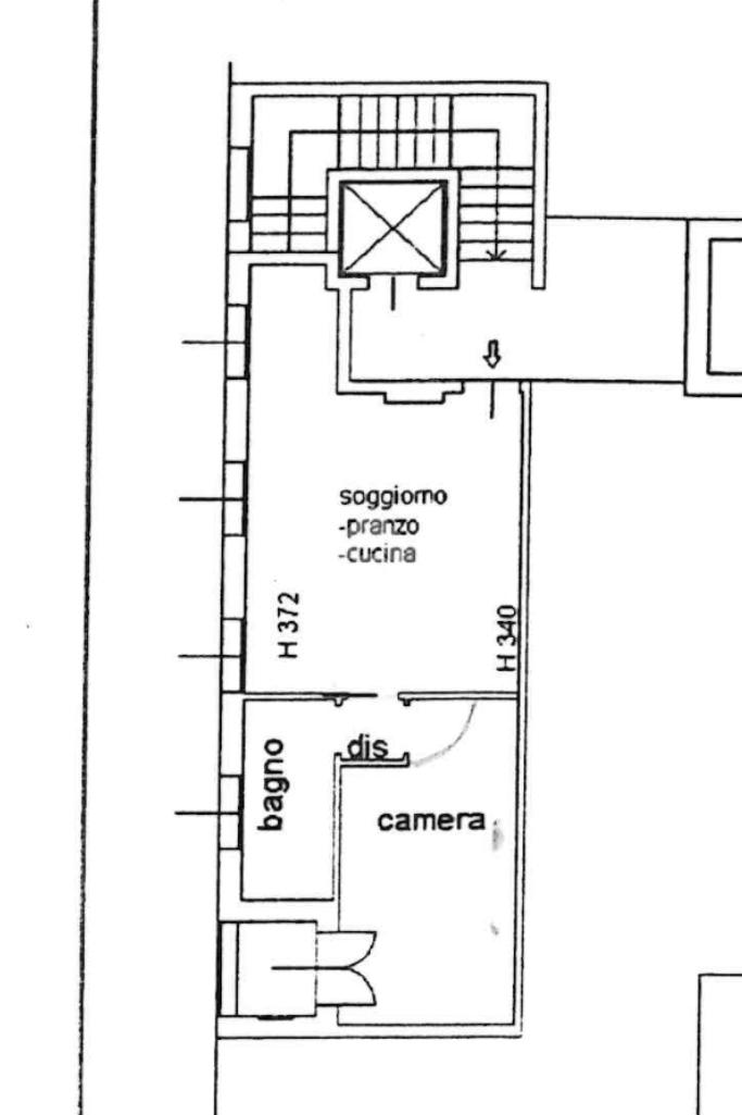
Nel cuore del paese di Noceto, in recente e curata palazzina, proponiamo in vendita elegante bilocale situato al terzo ed ultimo piano servito da ascensore.

L’appartamento si distingue per la sua straordinaria luminosità, valorizzata dalle altezze interne e dalle ampie finestre, oltre che dal fascino delle travi in legno a vista che rendono l’ambiente caldo e accogliente.

L’ingresso si apre su un’ampia zona giorno open space con angolo cottura a vista, ben distribuita e particolarmente luminosa. Un comodo disimpegno conduce alla zona notte dove troviamo una camera matrimoniale con accesso al balcone e un bagno finestrato completo di doccia.

L’immobile è dotato di porta blindata, videocitofono, riscaldamento autonomo, infissi in legno con doppio vetro e scuri in legno. Presente inoltre climatizzatore caldo/freddo e una comoda cantina a completamento della proprietà.

Soluzione ideale per chi cerca un’abitazione moderna, funzionale e pronta da abitare, in posizione centrale e comoda a tutti i servizi. Ottimo anche come investimento.

PER MAGGIORI INFORMAZIONI

0521/15822935 O 333/8564024

Mostra tutto

Nelle vicinanze

Trasporto pubblico Trasporto pubblico
stazione di Castelguelfo
stazione di Castelguelfo
2,8 Km
Trasporto pubblico
3,0 Km
Ricariche auto elettriche Ricariche auto elettriche
EnelX Boni e Gavazzi
340 m
EnelX Piazzale dello Sport
620 m
EnelX Alberto Sordi
830 m
Ponte Taro Madre Teresa di Calcutta | EnelX
2,9 Km
Scuole Scuole
Scuole
170 m
Scuola secondaria di primo grado "Biagio Pelacani"
580 m
Scuola primaria "Renzo Pezzani"
680 m
Farmacia Farmacia
Farmacia
510 m
Farmacia Comunale
2,9 Km
Supermercati Supermercati
Supermercati
510 m
Conad
550 m
Paladini Otello
2,7 Km
Negozi Negozi
Negozi
520 m
globo
2,7 Km
Bar Bar
Bar
520 m
Bar Legends
660 m
Bar da Marcello
750 m
Ristoranti Ristoranti
La Buca dei Diavoli
750 m
IL Noce
820 m
Passaparola
2,2 Km
Mostra tutto

Caratteristiche

Rif.:
61198710
Piano:
3 di 3 con ascensore (ultimo Piano)
Balconi:
1
Camere da letto:
1
Arredamento:
Assente
Condizionamento:
Autonomo
Mostra tutto
Prezzo Prezzo
€ 110.000
Rata mutuo Rata mutuo
€ 519 / mese
Spese annue Spese annue
€ 700
Proponi il tuo prezzoProponi il tuo prezzo

Classe Energetica

D
D
D
D
D
D
D
D
D
Anno di costruzione:
2006
Riscaldamento:
Autonomo
Tipo impianto:
A radiatori
Tipo alimentazione:
Metano

Ti interessa visionare l'immobile?

Fissa un appuntamento  Fissa un appuntamento

Richiedi informazioni

Clicca su Leggi per aprire l'informativa
* Questi campi sono obbligatori

Calcola il tuo mutuo

Semplice e senza impegno
Anticipo

( % )
Mutuo

( % )

pochi semplici passi

inserisci i tuoi dati
Questionario completato
Grazie per aver richiesto un appuntamento senza impegno con un nostro Consulente del Credito e Assicurativo.

Hai inserito correttamente tutti i dati necessari e a breve riceverai una e-mail con un link da convalidare per inviare i tuoi dati.
Affiliato
Ares Immobiliare Srl
Via Matteotti, 27 43015 Noceto (PR)

Il nostro staff


  • Martina Gallo
    Affiliata

  • Samuel Cresci
    Responsabile

  • Alexandra Mocanu
    Coordinatrice
Via Matteotti, 27 43015 Noceto (PR)
Zona: Noceto - Fontevivo - Fontanellato
Mostra su mappa
Orari: Dal lunedì al venerdì: 9:00-13:00 / 15:00-20.00 Sabato: 9.00-17.00
Affiliato
Ares Immobiliare Srl
Via Matteotti, 27 43015 Noceto (PR)

2026 Tecnocasa Franchising S.p.A. - P. IVA 08365160152 - Via Monte Bianco 60/A 20089 Rozzano (MI). Ogni agenzia ha un proprio titolare ed è autonoma. Privacy policy | Policy utilizzo | Cookie policy