Villa singola in vendita

Fontevivo, Strada Provinciale Busseto
€ 339.000
Prezzo aggiornato
6 locali 6 locali
203 Mq 203 Mq
2 bagni 2 bagni

Villa singola in vendita

Fontevivo, Strada Provinciale Busseto

Descrizione annuncio

FONTEVIVO:

STAI CERCANDO UNA CASA MODERNA, INDIPENDENTE ED EFFICIENTE DAL PUNTO DI VISTA ENERGETICO?

Questa soluzione in classe energetica B rappresenta un’opportunità ideale anche per chi desidera accedere ai vantaggi del mutuo green, unendo comfort, risparmio e sostenibilità.

Proponiamo in vendita splendida soluzione completamente indipendente nel comune di Fontevivo, situata in posizione strategica, a due passi dalle scuole e da tutti i principali servizi.

L’immobile, totalmente ristrutturato nel 2024, si presenta in condizioni pari al nuovo ed è caratterizzato da spazi ampi, funzionali e personalizzabili.

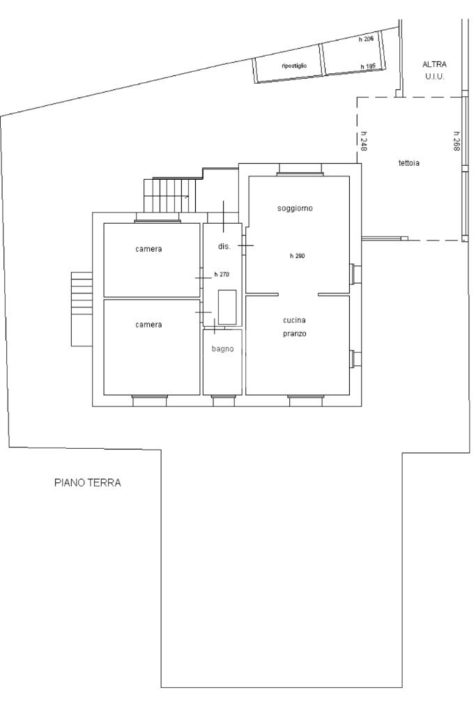
L’abitazione principale si sviluppa con una luminosa zona giorno open space con cucina abitabile, disimpegno, due camere matrimoniali e bagno finestrato con doccia.

Al piano primo troviamo un’ampia zona mansardata attualmente al grezzo, con la possibilità di ricavare fino a tre ulteriori ambienti da adattare alle proprie esigenze: camere da letto, studio, palestra o zona hobby.

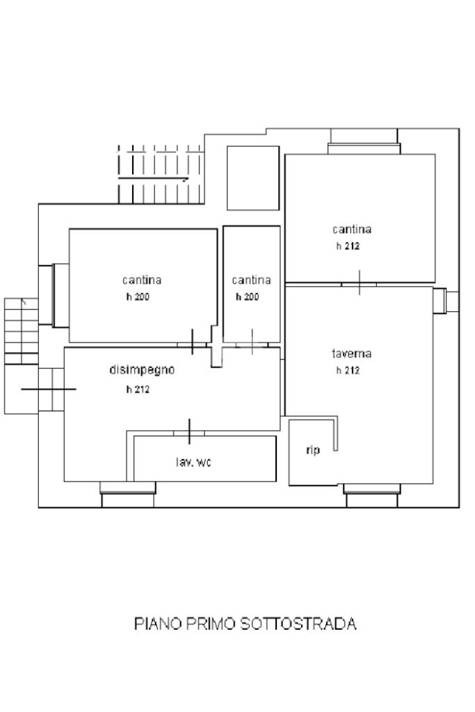
Al piano semi interraro è presente una comoda area accessoria già rifinita e adibita a taverna, completa di bagno/lavanderia con doccia, cantina, secondo soggiorno e locale tecnico.

La proprietà è interamente circondata da area cortilizia privata e da un giardino di circa 200 mq, ideale per momenti di relax all’aperto. Completano la soluzione un’autorimessa e un portico sfruttabile sia come due posti auto coperti sia come spazio conviviale per pranzi e grigliate.

L’immobile è dotato delle più moderne tecnologie: riscaldamento a pavimento, pompa di calore, cappotto termico, tapparelle motorizzate, sistema di allarme, videocitofono e addolcitore.

Soluzione ideale per chi cerca indipendenza, comfort e qualità costruttiva in un contesto tranquillo ma comodo a tutti i servizi.

NON FARTI PERDERE QUESTA OCCASIONE!

PER SAPERE DI PIU’ CONTATTACI AL:

0521/1582935 O 333/8564024

Mostra tutto

Nelle vicinanze

Trasporto pubblico Trasporto pubblico
stazione di Castelguelfo
stazione di Castelguelfo
2,1 Km
Ospedali Ospedali
Guardia Medica
2,8 Km
Supermercati Supermercati
COOP
2,9 Km
Negozi Negozi
CRAI
2,9 Km
Ristoranti Ristoranti
Ristorante Europa
2,6 Km
Xlumeria 3 portici
2,8 Km
Passaparola
2,9 Km
Di Frabrizio
2,9 Km
Mostra tutto

Caratteristiche

Rif.:
61193931
Piano:
Su più livelli di 2
Totale piani:
2
Box:
1
Posti auto:
2
Camere da letto:
3
Mostra tutto
Prezzo Prezzo
€ 339.000
Rata mutuo Rata mutuo
€ 1.610 / mese
Spese annue Spese annue
€ 0
Proponi il tuo prezzoProponi il tuo prezzo

Classe Energetica

B
B
B
B
B
B
B
B
B
EP invernale del fabbricato:
EP estiva del fabbricato:
Anno di costruzione:
1970
Riscaldamento:
Autonomo
Tipo impianto:
A pavimento
Tipo alimentazione:
Metano

Prezzo ridotto di €1 (8%%)

Ti interessa visionare l'immobile?

Fissa un appuntamento  Fissa un appuntamento

Richiedi informazioni

Clicca su Leggi per aprire l'informativa
* Questi campi sono obbligatori

Calcola il tuo mutuo

Semplice e senza impegno
Anticipo

( % )
Mutuo

( % )

pochi semplici passi

inserisci i tuoi dati
Questionario completato
Grazie per aver richiesto un appuntamento senza impegno con un nostro Consulente del Credito e Assicurativo.

Hai inserito correttamente tutti i dati necessari e a breve riceverai una e-mail con un link da convalidare per inviare i tuoi dati.
Affiliato
Ares Immobiliare Srl
Via Matteotti, 27 43015 Noceto (PR)

Il nostro staff


  • Martina Gallo
    Affiliata

  • Samuel Cresci
    Responsabile

  • Alexandra Mocanu
    Coordinatrice
Via Matteotti, 27 43015 Noceto (PR)
Zona: Noceto - Fontevivo - Fontanellato
Mostra su mappa
Orari: Dal lunedì al venerdì: 9:00-13:00 / 15:00-20.00 Sabato: 9.00-17.00
Affiliato
Ares Immobiliare Srl
Via Matteotti, 27 43015 Noceto (PR)

2026 Tecnocasa Franchising S.p.A. - P. IVA 08365160152 - Via Monte Bianco 60/A 20089 Rozzano (MI). Ogni agenzia ha un proprio titolare ed è autonoma. Privacy policy | Policy utilizzo | Cookie policy